公交车运营保障设施(维修棚、充电棚)项目
方案设计公示
设计原因:因忠县汽车总站发展需要,拟建设两栋公交车运营保障设施(维修棚、充电棚)。
设计依据:《民用建筑通用规范》GB55031-2022、《民用建筑设计统一标准》GB50352-2019、《建筑防火通用规范》GB55037-2022、《建筑设计防火规范》GB50016—2014(2018年版)、《汽车库、修车库、停车场设计防火规范》B50067-2014、《重庆市城市规划管理技术规定》等。
设计单位:四川泰合英华工程设计有限公司
设计内容:公交车运营保障设施(维修棚、充电棚)。。
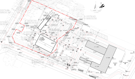
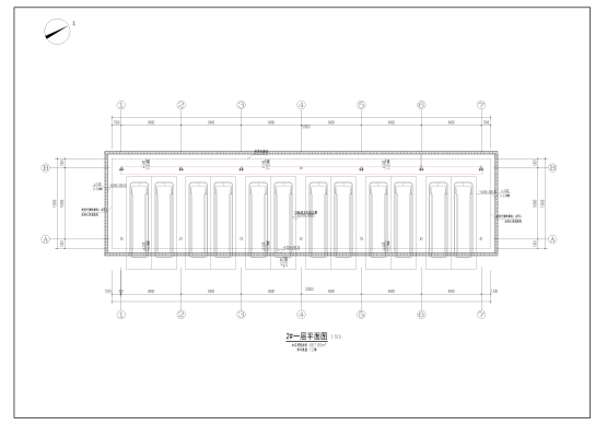
地块指标:建设用地面积18960.43平方米、总建筑面积2772.17平方米,总计容建筑面积2772.17平米。
公示地点:1、忠县规划和自然资源局 2、北山广场 3、忠州广场
4、政府网 5、项目所在地 6、忠州之家
意见反馈:1.若您需对该规划方案发表意见或有其他意见,应在意见反馈期限届满前向忠县规划和自然资源局提交书面意见,同时提供身份证明材料、联系方式。书面意见可当面提交,
也可通过邮寄方式提交。邮寄方式提交的,请在信封正面注明“公示反馈意见”字样,提交时间以邮局收件邮戳载明的时间为准。2.若您认为是该规划方案的利害关系人,在提交书面意见时,还应提供该规划方案直接涉及您利益的证明材料。3.意见反馈期限截止至公示期满后5个工作日内,规定期限内未反馈意见的,视为放弃权利。4.相关利害关系人可自公示期满之日起5个工作日内,向忠县规划和自然资源局提出书面听证申请,并提交身份证明材料、直接涉及您利益的证明材料。逾期未提出的,视为自动放弃听证权利。
通信地址:忠县忠州街道鸣玉溪大道99号2号楼2211楼忠县规划和自然资源局收联系电话:023-54232895
附件:1.规划总平面图 2.效果图 3.主要经济技术指标 4.平面图
忠县规划和自然资源局
2025年7月18日
2、透视效果图

3、主要经济技术指标
|
技术经济指标一览表 | |||||
|
项目 |
单位 |
规划条件 |
设计数值 |
备注 | |
|
建设用地面积(㎡) |
㎡ |
50090.3 |
18960.43 |
| |
|
总建筑面积 |
㎡ |
|
2772.17 |
| |
|
其中 |
地上建筑面积 |
㎡ |
|
2772.17 |
|
|
地下建筑面积 |
㎡ |
|
0.00 |
| |
|
|
1、1#公交车维修棚 |
㎡ |
|
2104.37 |
|
|
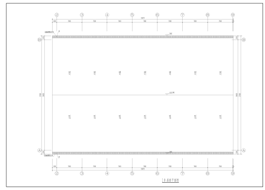
2、2#新建充电桩车棚 |
㎡ |
|
667.80 |
| |
|
总计容建筑面积 |
㎡ |
|
2772.17 |
| |
|
容积率 |
|
|
0.15 |
| |
|
建筑密度 |
|
|
14.62% |
| |
|
绿地率 |
|
|
0.00 |
| |
|
停车位 |
辆 |
|
12 |
| |
|
其中 |
①公交车停车位 |
辆 |
|
12 | |
|
②小车停车位 |
辆 |
|
0 | ||
|
十、建筑高度(层数) |
|
|
9.30 M/1F |
| |
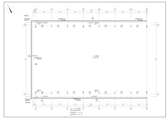
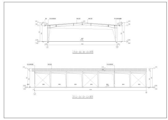
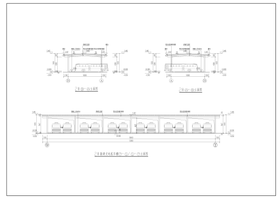
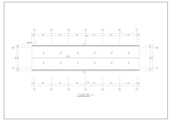
4、建筑平立面图
1#一层平面图
1#屋面平面图
1#立面图
2#一层平面图
2#屋面平面图
2#立面图
5、公示申请
