忠县忠州街道红星路22号附3号增设电梯项目公示
忠县忠州街道红星路22号附3号业主向忠县人民政府忠州街道办事处申请在其所在单元增设电梯,现将项目书面申请、业主书面同意意见、电梯施工平面图及示意图向社会各界及忠县忠州街道红星路22号附3号产权人进行现场公示。
公示单位:忠县人民政府忠州街道办事处
公示时间:2026年2月10日至2026年2月16日
公示地点:增设电梯住宅楼现场、忠县人民政府忠州街道办事处政府网
反馈方式:
1、若您认为受到增设电梯直接影响,应在公示期间向忠县人民政府忠州街道办事处提交实名书面反对意见,同时提供身份证明材料、联系方式以及该电梯直接涉及您利益的证明材料,规定期限未反馈意见的,视为放弃权利。书面反对意见可当面提交也可通过邮寄方式提交。以邮寄方式提交的,请在信封正面注明“公示反馈意见”字样,提交时间以邮寄收件戳载明的时间为准。
2、您也可以在公示期内向忠县人民政府忠州街道办事处申请听证。
通讯地址:重庆市忠县忠州街道巴王路18号
联系电话:023-54247185
一、申请 二、同意增设电梯的业主名单及书面同意意见

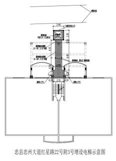
三、增设电梯施工平面图及示意图

忠县人民政府忠州街道办事处
2026年2月9日
